Silo
Silo
Silo

TECNOLOGÍA DE FILTRADO

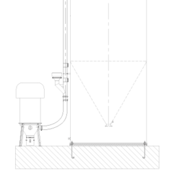
El uso de filtros de silo es esencial cuando se almacena material a granel en polvo. Nuestros filtros de silo han sido especialmente diseñados para el llenado neumático mediante camiones silo. Los elementos del filtro se limpian con ráfagas de aire comprimido para que toda la superficie del filtro esté disponible en todo momento.

En el caso de usos sensibles como es el de la fabricación de productos plásticos en tecnología médica o la industria alimentaria, el filtro del silo se coloca en una parte inferior junto al silo. Un tubo de ventilación conduce el aire de transporte al filtro del silo mientras se llena el camión silo. Se trata en este caso, principalmente, de evitar la contaminación del material a granel y, en segundo lugar, de eliminar el polvo del aire de transporte.

Tecnología de filtrado

Filtro de silo
  • Filtro de silo con aparato de control, válvulas solenoides, tanque de aire comprimido, tubos de soplado y cubierta de protección contra la intemperie
  • Limpieza de filtros mediante aire comprimido; accionado por contacto externo o por el presostato incorporado
  • Cartuchos filtrantes de vellón de poliéster, antiestáticos; diseño oleofóbico e hidrofóbico
  • Carcasa de acero inoxidable, cubierta de protección contra la intemperie de PE (gris), placa de filtro con revestimiento en polvo de acero (RAL1015)
  • incluye material de fijación
  Superficie de filtrado
SF.AJB.800.22.P.20 22 m² 230 V, 50 Hz
SF.AJB.800.31.P.20 31 m² 230 V, 50 Hz

Parte inferior del filtro de silo con cubo de polvo
  • que permite alojar un filtro de silo y conectar un máximo de 2 tubos de purga de Ø150
  • Carcasa y pies de acero inoxidable
  Filtro de silo adecuado H
SF.AJB.Z.UT.800.22.CR SF.AJB.800.22.P.20 900
SF.AJB.Z.UT.800.31.CR SF.AJB.800.31.P.20 1300

Válvula de compensación de presión
  • válvula de compensación de presión accionada por resorte con cubierta de protección contra la intemperie
  • Carcasa de acero inoxidable
  ATEX Rango de presión
DAV.02.45.5.CR no +45 / -5 mbar
DAV.02.45.5.CR.ATEX +45 / -5 mbar

Tubo de ventilación Ø 150
  • Codo tubular de acero inoxidable situado en el techo del silo
  • tubo de aluminio recto perpendicular al silo
  • Tubo de desvío de aluminio con conexión para válvula de compensación de presión
  • Conexión de manguera al filtro de purga
  Altura máx.
SZ.33.3.ENTLUEFTUNGSLEIT.10 10000
SZ.33.3.ENTLUEFTUNGSLEIT.15 15000
SZ.33.3.ENTLUEFTUNGSLEIT.20 20000